
Rahvusvaheline kunstiprojekt sidus Korea iidsed aiatraditsioonid ja kunstnik Flo Kasearu majamuuseumi aia Pelgulinnas.
Sügisel lehtede langemise aegu käis Tallinnas Pelgulinnas ühel veidi pentsikul Pebre tänava tagaõuel kibe askeldamine. Siia-sinna liikumise, kärutamise, kaevamise, ladumise, sobitamise, silumise ja istutamisega oli ametis terve hulk inimesi. Sekka veel mõni suurem masin materjale toomas või mullatöid kergendamas. Vähem kui nädalase intensiivse töö tulemusena valmis omapärane kunstiprojekt „Korea aednik”.
Alates 1995. aastast korraldatav Gwangju biennaal seob kogu maailma kunstnikke. See toimus 2016. aastal 11. korda, kandes nime„The Eighth Climate (What does art do?)”. Saja ühe rahvusvahelise osaleja hulgas lõi ainukese eestlasena kaasa kunstnik Flo Kasearu „Eelmine rahvusvaheline vahetus- ja koostööprojekt majamuuseumis oli 2004. aastal tehtud performance ja videoteos aiaaugust pealkirjaga „De-fence” koostöös Poola muuseumivalvuriga, kes valvas 24 tundi turvamehena minu ja naabri aia vahel olevat auku. Projekt juhtis iroonia kaudu tähelepanu kunsti ja selle turvalisuse teemale. Igapäevaselt pean oma majamuuseumis täitma nii kunstniku, direktori, koristaja, kommunikatsioonijuhi kui ka turvamehe rolli. Selle projektiga sain ühe rolli üheks päevaks ära jagada.” Gwangju biennaalile oli Flol idee teha samuti vahetus- ja koostööprojekt kas söögi teemal, sest Korea toit on väga maitsev, või midagi seoses aiaga. Viimane mõte tundus mõistlikum, sest maja taga on olemas päris suur ja palju võimalusi pakkuv vana aed. „Biennaali kaudu sain kontakti Korea aiadisaini instituudi (Korean Institue of Garden Design (KIGD)) professori Hong Kwang-Pyoga, kes oli valmis projektis kaasa lööma. 63-aastane härra Hong on oma erialal väga põhjalik ning ka huumori mõttes olime ühel lainel,” selgitab Flo ühistöö sündi. Projekti rahastasid Eesti kultuuriministeerium, KIGD, Flo ise, biennaali korraldajad ning põhjanaabrid.

Koreasse saadetud krundiplaanile visandas aiakujundaja koos Floga Korea traditsioonidel põhineva aia koos oluliste elementidega. Septembris lendas härra Hong koos oma abiliste Dong Mok Seo ja Song Hoon Choiga ise kohale oma nägemuse järgi aeda rajama. Flo on koostööst korealastega positiivselt üllatunud: „Ma imestan nende usaldust minu vastu – tulla teise maailma otsa rajama tavalisse ja pisut räämas aguliaeda midagi kultuuriliselt täiesti teistsugust. Mulle meeldib see kontrast, mis tekkis: tuled Pelgulinna agulisse, üle saja aasta vanusesse renoveerimata majja, astud aeda – ja see on selline stiilne, natuke nagu presidendi aed. Mulle meeldib see nihestatus, see on ootamatu. Kui aknast välja vaatan, on mul tunne, nagu oleksin kuskil reisil,” tunnistab Flo.
Muuseumi tagaaed esindab tõepoolest tüüpilist aguliaeda: ühel pool vana väike pesuköök, teisel kuurid, taga veel alles mõned vanad õunapuud ja põõsad. Samas on siin kunst juba ees: hiiglaslikule kangale, mis varjab vaadet naabermajale ning vastupidi, on maalitud tsunamilaine ning keset õue troonib paar aastat tagasi suure tormiga murdunud tohutu rontskulptuur „Ilmutus”. Kuigi suuremat ja väiksemat kunsti leiab pea igast nurgast, on õu mõeldud eelkõige elamiseks: siin mängivad lapsed, kuivab pesu ning kastpeenardes kasvab supiroheline. Enne uute aiatööde algust viidi läbi kohustuslik püha rituaal: kummardati kolm korda jumalate poole ning tehti väike annetus. Kombetalituseks oli kaasa toodud ka spetsiaalne kuivatatud kala, mis riputati hiljem paviljoni räästa alla. Alles siis võis asuda maa „avamise” juurde ehk alustada tööga. Lisaks korealastele lõid aia rajamisel kaasa Flo ise koos elukaaslase Tõnuga, nende laps Vint, sõbrad ja nende lapsed, maja- ja tänavanaabrid, vanemad, kohalik kopamees ning kolm maastikuarhitektuuri tudengit Anastasia Bõstrova, Birgit Pukk ja Maarja Tüür Tallinna Tehnikaülikooli Tallinna Kolledžist (õppejõud Kristi Grišakov). Aia valmimist kui kunstiprojekti kajastas muuseumi kodulehel live-video. Aia valmimist dokumenteerinud videomaterjalist on tulevikus plaanis kokku monteerida videoteos.
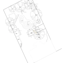
Vähem kui nädalaga rajati ettevalmistamata vanale tasasele krundile toodud mulla, pinnase ja kivide abil Korea aia kohustuslikud osad – mäed, vesi, kivid – ning ehitati paviljon. Kõik elemendid on omavahel nii visuaalselt kui filosoofiliselt voolavas seoses, suhestuvad üksteisega ning on siinses aias lahendatud veelgi sümbolistlikumas võtmes kui oma kodumaal. Aeda vormiti kolm küngast ehk „mäge”, mis kaeti pealt rullmuruga. Kaevati ja vooderdati kividega ruudukujuline „kuiv bassein”, mille keskele sobitati seisma kivist „kaljusaar”. Süvendi põhi kaeti tihedalt kanarbikutaimede õitsva lilla merega. Paviljonist avanev vaade nii „veele” kui „mägedele” annab ainest igavikulisteks mõtisklusteks. Ainuke istutatud puu – vaher – kannab edasi aja kulgu ehk aastaaegade vaheldumise meeleolu. Küngaste taha aia äärde ehitatud astanguline kivipeenar ning paviljoni ääristavad õistaimed lisavad muidu lakoonilistele vormidele pehmust ning värve. Kui alusvormid paigas, võis alata isutamine. Taimi käidi koos Korea aednikega valimas Hansaplanti aianduskeskuses. Meil on siin levinud ju osaliselt teised liigid ja sordid kui Koreas. Kuid konkreetsetest liikidest tähtsamad olid värv ja mulje, mida saavutada taheti, ning selleks oli sobivaid taimi piisavalt.
Kolm küngast sümboliseerivad nii korea, jaapani kui hiina aiakunstis kolme jumalikult hingestatud mäge. Need on fantaasiamäed, mis tegelikkuses kusagil ei eksisteeri, vaid inimesed igatsevad sinna mõtetes minna nagu paradiisi. Koreas neile peale astuda ei tohikski, sest see pind on püha, kuid siin on lugu teine. Eesti aguliaed annab aiale teise kihistuse. Flo on praktilise inimesena mõelnud neile kui laste suurepärasele mängukohale. „Mul oleks neid kahju ainult vaadata. Kuna Eestis ei ole eriti mägesid, siis tahaks neid ka füüsiliselt tunda ja kogeda,” arvab ta. „Mu aias on nii, et kui Muhamed ei läinud mäe juurde, tuli mägi Muhamedi juurde. Olen toonud koduõuele erinevad maastikuvormid ja ilmastikunähtused. Siia on tekkinud juba väike kollektsioon: kangale maalitud tsunamilaine, mäed, kandiline saarega tiik, suur murdunud oks.” Lastele pakub kogu aed mitmekülgset tegevust, talvel näiteks kelgumäena.
Kunstiprojekt sai biennaali raames küll läbi, ent aia järelelu kestab edasi. Juba muru kastmine, mis kuiva sügise ajal oli hädatarvilik, tekitas kunstnikus tunde aiapidamise süvenevast hobist. „Nagu oleks kodus uus lemmikloom, kelle eest on vaja hoolitseda,” arvab ta ise. „Kindlasti tuleb edaspidi lahendada probleeme, kuidas näiteks mägedelt muru niita või kuidas taimed talvele vastu peavad. Aga see, kuidas aed edasi areneb, ongi huvitav ning tekitab jätkuprojekti tunde.” Nii nagu Flo Kasearu majamuuseum kajastab reaalajas kunstniku elu ja loomingulisust, kujuneb päevhaaval ka muuseumi aed.









Sarnased artiklid









